Drainage Solutions
Drainage Solutions from LS Engineering, suitable for all industries and applications.
We provide a complete product range of Drains, Outlets, Covers, Gullies, Channels and Rodding Eyes.
Bespoke sizes to suit your site requirements along with a range of different duty for smaller and larger footfalls.
Designed in house by our highly experienced design team.
For independent professional advice please contact our sales team with your requirements.
Email: sales@lsengineering.co.uk or call 01952 814822.
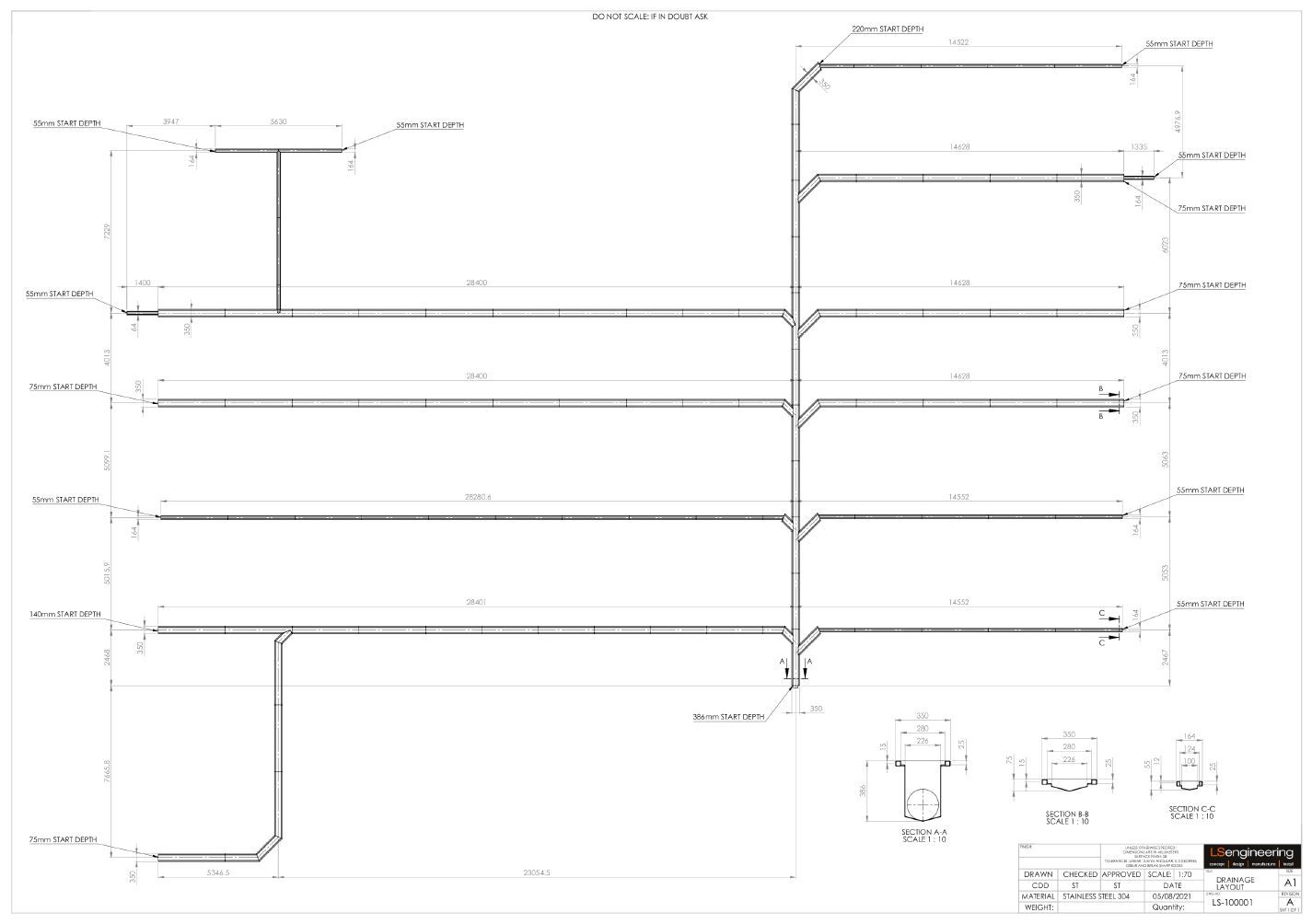
Case Study
LS Engineering have recently completed the manufacture and installation of a drain project for one of our clients with light weight heavy duty removable GRP drain grid Tops. The Run consisted of 1 central channel with 10 contributaries of varying widths totalling 230 metres with an end depth of 380mm (please see below G.A.). Getting the falls to work based on the depth of the end discharge was certainly a challenge however our skilled team (from design to install) delivered the project on time and within budget.
