Product Details
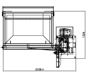
- The Lifter Tipper Machine is manufactured from 304 Grade Stainless Steel and is used to lift mobile containers of 1200 x 800 x 1000mm.
- We design this model as a stationary execution with guarding. This is a right hand execution and is driven by chain. The Dead Man control can be located on the outside of the guarding for safe execution.
- Our Lifter Tipper Machine execution takes place via the long side of the container.
- The machine complies with the high CE -Requirements and EU- and USDA regulations. Special executions on demand.
- View our full range of high quality stainless steel Lifting & Tipping Equipment.
- Please contact the office for more information or simply click enquire on the product to send a direct email to our sales team.
- Can’t find what you are looking for? We can build it Bespoke!
- We manufacture bespoke solutions so should you see something that is similar or have an idea in mind please contact the sales team who will be happy to help.
Additional Information
| Weight | 1500 kg |
|---|---|
| Dimensions | 2038 × 7350 cm |
Related products
-

200 / 700 Litre Dual Capacity Chuted Swing Loader
-

Pharma FBD Bowl Lifter/Tipper for Liquids and Bulk Materials
-

Eurobin Washing Machine incl. Belt Filter
-

600 Litre Chuted Swing Loader
Select options This product has multiple variants. The options may be chosen on the product page



